Italiano
PER VENDERE O PER AFFITTARE IL TUO IMMOBILE
AFFIDATI ALLA NOSTRA PROFESSIONALITA’

SPLENDIDO BILOCALE ARREDATO

75.000 €
55 m2
1 Camere
1 Bagni
Codice
V001493
Città
Torino
Categoria
2 locali
Spese condominiali
950 €
Locali
2
Mq Balcone
6
Classe energetica
F
158,09
Stato Immobile
Ristrutturato
Grado
Medio
Posizione
Periferia
Panorama
Vista Aperta
Lati Liberi
3
Giardino
Cortile
Arredi
Arredato
Tipo Soggiorno
Soggiorno
Tipo Cucina
Angolo Cottura
Riscaldamento
Conta Calorie
Tipo Riscaldam.
Caldaia
Tipo Impianto
Radiatori
Fonte Energetica
Metano
Acqua Calda
Autonoma
Raffrescamento
Split
Infissi
Legno Doppio Vetro
Serramenti
Buono
Persiana
Tapparella PVC
Pavim. Giorno
Ceramica
Pavim. Notte
Ceramica
Pavim. Cucina
Ceramica
Pavim. Bagno
Ceramica
Accessori
Aria Condizionata, Ascensore, Doppi Vetri, Passaggio Automobilistico, Passaggio Pedonale, Porta Blindata, Ripostiglio, Tapparelle Elettriche
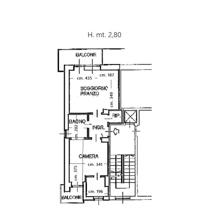
Nei pressi di via Lanzo proponiamo in vendita, in zona molto tranquilla, un appartamento bilocale interamente arredato e ristrutturato completamente nel 2022.
L'appartamento si trova al primo piano di un edificio del 1965 dotato di ascensore e di cortile condominiale.
L'abitazione si compone di un ingresso, un soggiorno con parete cottura, una camera da letto matrimoniale con ripostiglio finestrato a uso cabina armadi, un bagno finestrato con box doccia, un secondo ampio ripostiglio, due balconi, tre arie, oltre a una cantina nell'interrato.
L'appartamento è stato interamente ristrutturato nel 2022.
Pavimenti e rivestimenti sono in ceramica.
Il riscaldamento è fornito da una caldaia centralizzata regolato da termo valvole con conta calorie.
Gli infissi esterni sono in legno con doppi vetri mentre le tapparelle, tutte motorizzate, sono in PVC.
Il raffrescamento è fornito da uno SPLIT interno.
Ideale per single o per investimento.
L'abitazione, in Categoria A/3 sviluppa una rendita catastale di 278,89 euro.

Video

Mappa

Via Berrino 3, Torino (TO)

Condividi

Cookie preference